混凝土为什么会出现蜂窝现象?如何处理?一次给你讲清楚!混凝土,作为现代建筑中不可或缺的核心材料,其质量优劣直接关系到建筑结构的强度、稳定性和耐久性。…
点击了解详情 →202411-29
…
202408-02
建筑的江湖世界里,甲方总是扮演着“大爷”的角色,而乙方——那些辛勤耕耘的包工头和农民工兄弟们,却常常成了被拖欠工程款的“软柿子”。…
202408-01
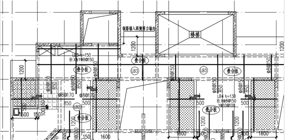
楼梯作为地震或火灾等紧急情况下的重要逃生通道,在设计时应当给予充分的重视和考虑。结构需确保足够的安全性,为人员提供快速、有效的逃生路径。…
202407-29
,工程斜坡中的支挡工程是否需要在坡面的端部设置联系梁,这是由坡体所在地质条件和支挡结构自身的素质所共同客观决定的,也是由有些技术人员自身心理素质和业务技能所主观决定的。…
202407-25
看似只是添置了一台上下楼的工具,实则却承载着更深层的社会意义。而其中最直观、最迫切的,莫过于解救“悬在半空”的老年人,打通他们晚年生活的“最后一公里”。 试想一下,那些…
202407-25
地下室外墙单侧支模施工技术,是将基坑侧壁直接作为地下室外墙的外侧模板,减少施工工序,彻底取消肥槽,不仅解决了肥槽狭小空间支模难问题,消除了有限空间作业安全风险,而且规避…
202407-24
北方多地气温超过40℃,河北中南部、河南北部等地成为全国最热地区,任县气温更是高达41.5℃。北方已有石家庄、天津、郑州三个省会城市突破40℃高温。高温来势汹汹,光伏发…